La norme NF DTU 61.1 constitue un cadre de référence incontournable pour toute installation de gaz dans le secteur de l’habitat, que ce soit en construction neuve ou rénovation importante. Elle rassemble des exigences précises sur les matériaux, la configuration des réseaux, et surtout la sécurité, afin de prévenir efficacement les risques liés au gaz combustible. Appliquée aux logements individuels comme collectifs, cette norme impacte l’ensemble des intervenants du bâtiment, pas uniquement les professionnels du chauffage ou de la plomberie.
Les règles définies dans ce texte technique unifié couvrent notamment :
- Les types de gaz autorisés (gaz naturel, butane, propane, et conditions d’usage pour certains gaz alternatifs)
- Les matériaux et accessoires adéquats pour les canalisations et la pose
- Les distances de sécurité entre conduites gaz et autres réseaux (électrique, eau, ventilation)
- Les mesures d’étanchéité et d’identification des installations
- Les procédures d’épreuve et de mise en service des réseaux gaz
En 2026, comprendre et appliquer rigoureusement la NF DTU 61.1 est essentiel pour assurer la conformité réglementaire, la sécurité des utilisateurs, et éviter toutes conséquences juridiques ou techniques défavorables. Ce guide vise à éclairer les porteurs de projet et artisans sur les points essentiels de cette norme souvent consultée mais méconnue dans ses détails.
À quoi sert la norme NF DTU 61.1 dans une installation de gaz ?
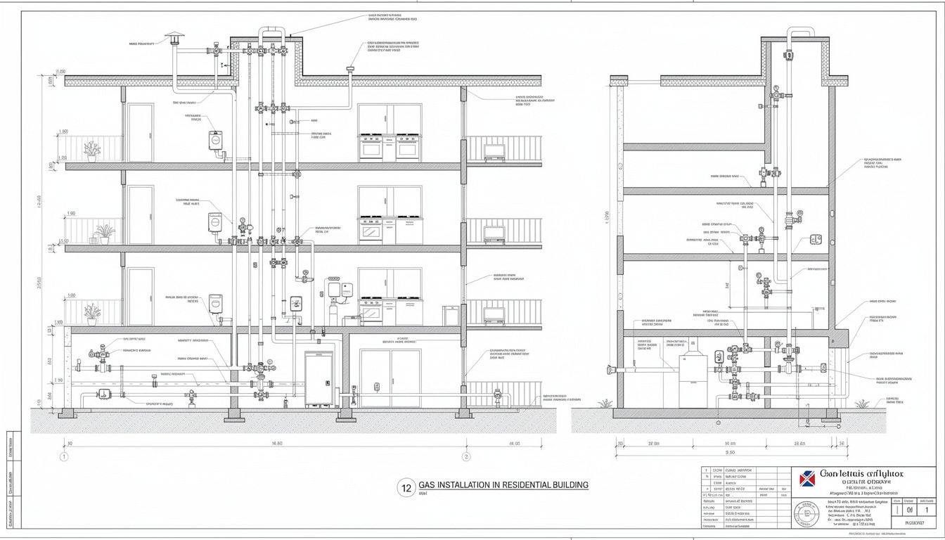
La norme NF DTU 61.1 a pour objectif principal de garantir la sécurité des installations de gaz combustibles dans les logements. Elle encadre la conception et la réalisation des réseaux de gaz destinés à alimenter des équipements domestiques (chaudières, plaques de cuisson, chauffe-eau), depuis l’arrivée du gaz jusqu’au point d’usage.
Elle fixe les règles pour limiter les risques de fuite, d’explosion ou d’intoxication, en précisant les conditions de pose, les matériaux autorisés, les protections mécaniques obligatoires, ainsi que les distances de sécurité minimales avec d’autres réseaux techniques. Ainsi, la norme s’applique dès la conception pour éviter toute malfaçon et lors des contrôles avant mise en service afin de garantir l’étanchéité et la conformité de l’installation.
La NF DTU 61.1 s’applique principalement aux habitations neuves ou en rénovation importante, mais exclut les installations industrielles ou agricoles qui relèvent d’autres normes spécifiques.

Quels sont les matériaux et équipements autorisés pour les canalisations gaz selon le DTU 61.1 ?
La norme définit strictement les matériaux adaptés pour les conduites et accessoires employés. Elle autorise notamment :
- Le cuivre, très utilisé pour les réseaux intérieurs grâce à sa résistance et durabilité.
- L’acier, pour des installations sous certaines conditions, souvent favorisé en cours de chantier ou zones spécifiques.
- Le PER multicouche, sous réserve de conformité aux prescriptions techniques et conditions d’installation.
Les matériaux doivent être posés conformément aux règles de l’art, avec des jonctions étanches, des fixations solides, et des protections mécaniques adaptées (gaine, fourreau). Certains passages sont interdits dans des locaux non ventilés ou dans des gaines dépourvues de désenfumage. Ces contraintes visent à préserver l’intégrité du réseau gaz et prévenir toute fuite accidentelle.
Tableau synthétique des matériaux autorisés selon leurs usages et conditions
| Matériau | Usage principal | Conditions spécifiques | Restrictions majeures |
|---|---|---|---|
| Cuivre | Réseaux intérieurs | Respect des diamètres prescrits et assemblage par brasure | Pas d’exposition directe aux UV ou milieux corrosifs non protégés |
| Acier | Canalisations apparentes et enterrées | Protection anticorrosion obligatoire, traitement contre l’humidité | Interdit dans certains locaux non ventilés |
| PER multicouche | Réseaux intérieurs sous conditions | Utilisation de raccords spécifiques hermétiques, pose selon fascicules techniques | Non autorisé en partie visible sans protection |
Quelles sont les règles de pose et distances de sécurité dans une installation gaz ?
Pour que l’installation reste sûre et fonctionnelle, le DTU 61.1 impose diverses règles de pose strictes :
- Distances minimales entre canalisations gaz et réseaux électriques (au moins 10 cm), eau, ou ventilation (15 cm minimum).
- Évitement des passages dans des locaux non ventilés ou encombrés, particulièrement pour les conduites traversant des murs ou cloisons.
- Fixations solides pour prévenir tout mouvement ou choc.
- Identification claire des tuyaux par couleur (jaune exclusif au gaz) et étiquetage, avec un accès facile pour les diagnostics ultérieurs.
Ces prescriptions techniques permettent d’assurer à la fois une protection mécanique de la tuyauterie et une prévention des risques liés à une proximité inadéquate avec d’autres installations techniques. Par exemple, un câble électrique trop proche d’une conduite gaz augmente fortement le risque en cas de défaut d’isolement.
Exemple d’application pour la ventilation d’un local équipé d’un appareil gaz
Le local contenant la chaudière ou tout autre équipement fonctionnant au gaz doit impérativement être ventilé par une entrée d’air basse et une sortie d’air haute, pour assurer un renouvellement d’air continu. Cela prévient l’accumulation de gaz en cas de fuite et limite les risques d’intoxication au monoxyde de carbone.
Pourquoi effectuer des épreuves d’étanchéité et de mise en service selon la norme DTU 61.1 ?
Avant la mise en service d’une installation gaz, il est impératif de réaliser des tests rigoureux d’étanchéité et de résistance à la pression. Ces contrôles visent à s’assurer qu’aucune fuite ne peut se produire et que l’ensemble du réseau supporte les pressions normales d’exploitation.
Les résultats sont consignés dans un procès-verbal, document indispensable en cas de contrôle ou pour l’assurance. Il valide la conformité à la norme et aux exigences de sécurité. En l’absence de ces épreuves ou si elles révèlent des anomalies, l’installation ne peut être mise en service en toute sécurité.
Cette étape évite des incidents graves tels que des intoxications par fuite, ou des explosions dues à l’accumulation de gaz. De plus, elle garantit la durabilité des installations et réduit les interventions correctives coûteuses.
Quels sont les avantages à respecter la norme NF DTU 61.1 ?
Outre la nécessaire conformité réglementaire, le respect du DTU 61.1 sécurise les utilisateurs et préserve la responsabilité des professionnels. En cas d’incident, les assurances se réfèrent à cette norme comme critère principal. Une installation réalisée dans les règles de l’art facilite également l’obtention de certificats de conformité, indispensables pour la mise en service et la mise en location d’un logement.
Les avantages sont multiples :
- Sécurité renforcée contre les risques de fuite, incendie ou intoxication
- Assurance de la conformité aux exigences réglementaires légales
- Protection de la responsabilité professionnelle en cas d’accident
- Meilleure lisibilité et maintenance facilitée grâce à une identification claire
Quels conseils pratiques pour appliquer la norme NF DTU 61.1 sur un chantier ?
Pour respecter efficacement la norme sans nécessité de maîtriser chaque détail, quelques gestes essentiels suffisent :
- Vérifier systématiquement les distances minimales entre tuyauteries gaz et autres réseaux
- Assurer la ventilation adéquate dans chaque local abritant un appareil à gaz
- Choisir les matériaux conformes et vérifier leur bon état avant pose
- Étiqueter clairement chaque conduite pour faciliter le repérage futur
- Solliciter, si besoin, des guides ou formations dispensés par Qualigaz, GRDF ou autres organismes spécialisés
Adopter ces bonnes pratiques réduit considérablement les risques et contribue à une installation conforme et pérenne.
Structure et contenu technique du document DTU 61.1
Le DTU 61.1 est composé de 7 parties clés :
- Terminologie, domaine d’application, définitions
- Dispositions générales concernant matériels et conditions de réalisation
- Prescriptions particulières pour installations avant compteur, compteurs, et alimentation des chaufferies ou autres dispositifs de combustion
- Règles relatives à l’évacuation des produits de combustion
- Aménagements des emplacements pour équipements et locaux techniques gaz
- Cahier des clauses spéciales
- Règles de calcul pour dimensionnement des canalisations
La dernière révision date de 2010, intégrant les évolutions techniques pertinentes jusqu’à cette date. Ces parties couvrent ainsi l’ensemble des aspects, depuis la conception initiale jusqu’aux essais et mises en service.
La norme DTU 61.1 est-elle obligatoire pour toutes les installations de gaz domestique ?
La norme DTU 61.1 s’applique aux logements individuels et collectifs, principalement en construction neuve ou rénovation importante. Bien que volontaire, elle est souvent intégrée dans les prescriptions réglementaires et par les assurances pour délivrer les certificats de conformité.
Quels risques en cas de non-respect de la norme NF DTU 61.1 ?
Un non-respect peut entraîner des fuites de gaz, explosions, intoxications ou refus de mise en service. Les professionnels engagés peuvent voir leur responsabilité engagée en cas de sinistre.
Peut-on utiliser n’importe quel matériau pour les canalisations gaz ?
Seuls certains matériaux comme le cuivre, l’acier et le PER multicouche sous conditions sont autorisés par la norme. L’usage de matériaux non conformes expose à de sérieux risques et à des désordres techniques.
Quelles précautions prendre pour la ventilation dans une installation gaz ?
Tout local équipé d’un appareil à gaz doit disposer d’une entrée d’air basse et d’une sortie d’air haute pour assurer un renouvellement naturel de l’air, limitant ainsi les risques de concentration de gaz.
Comment s’assurer de la conformité d’une installation gaz ?
La conformité est vérifiée lors des épreuves d’étanchéité et de résistance à la pression, documentées par un procès-verbal obligatoire avant mise en service.
